L'Agence Rossi Croisette Immobilier vous présente à la vente cet appartement T2 avec balcon à Mougins.
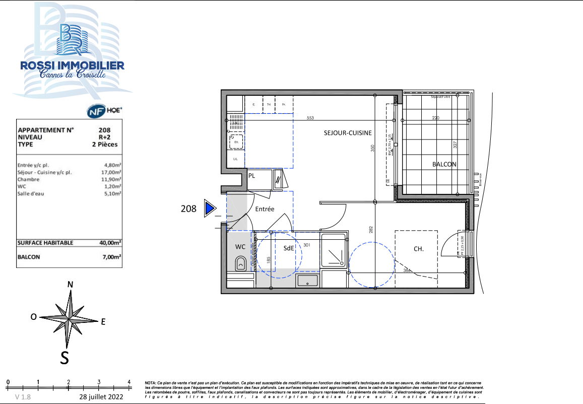
Situé à 5min à pieds de nombreux commerces et à 10 et 20min en voiture des villes de Cannes et Nice, ce magnifique appartement de 40m² ne pourra que vous séduire! L'appartement est composé d'une grande chambre, d'une salle d'eau, et d'un grand séjour avec un espace cuisine ainsi qu'un superbe balcon de 7m² exposé Est
SURFACES
Séjour/Cuisine: 17m²
Chambre: 11,9m²
Salle d'eau: 5,1m²
Toilette: 1,2m²
Entrée: 4,8m²
Balcon: 7m²
PRESTATIONS
Volets roulants électriques
Éclairage extérieur
Jardin en copropriété
Ascenseur
Porte blindée
Service de sécurité
PROXIMITÉS
Commerces: 300m
Centre ville : 350m
Pour plus d'informations concernant cet appartement T2 avec balcon à Mougins, contactez nous par mail ou par téléphone.
Les informations sur les risques auxquels ce bien est exposé sont disponibles sur le site Géorisques : georisques.gouv.fr
Voir nos honoraires
Partager
Fiche technique
Note DPE
Non renseigné
Note GES
Non renseigné
Superficie
40m²
Nombre de pièces
2
Nombre de chambres
1
Nombre de salles de bain/d'eau
1
Nous écrire
Les champs indiqués par un astérisque (*) sont obligatoires
Situé à 5min à pieds de nombreux commerces et à 10 et 20min en voiture des villes de Cannes et Nice, ce magnifique appartement de 40m² ne pourra que vous séduire! L'appartement est composé d'une grande chambre, d'une salle d'eau, et d'un grand séjour avec un espace cuisine ainsi qu'un superbe balcon de 7m² exposé Est
SURFACES
PRESTATIONS
PROXIMITÉS
Pour plus d'informations concernant cet appartement T2 avec balcon à Mougins, contactez nous par mail ou par téléphone.
Les informations sur les risques auxquels ce bien est exposé sont disponibles sur le site Géorisques : georisques.gouv.fr